Property Description
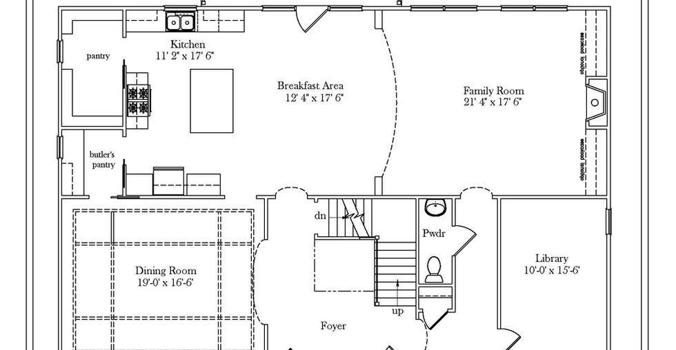
New CONSTRUCTION WITH FIRST FLOOR LIVING IN THE RIVER ROAD CORRIDOR! Welcome to your dream home—an exceptional new build by Colonial Homecrafters, Ltd., offering elegant first-floor living on nearly half an acre in one of the area's most sought-after locations. This thoughtfully designed home features 10-foot ceilings and gleaming hardwood floors throughout the main level, creating an open, airy feel. The great room boasts a vaulted ceiling, gas fireplace, and sliding glass doors that open to a spacious 20' x 16' screened porch—complete with its own fireplace, perfect for year-round entertaining. The state-of-the-art kitchen is a chef’s dream, centered around a stunning quartz island and equipped with Sub-Zero refrigerator and Wolf appliances. A vaulted dining area provides the ideal setting for hosting family and friends. The main-level primary suite offers a vaulted ceiling, spa-inspired designer bath, and easy access for convenient living. Two additional first-floor bedrooms share a well-appointed full bath, perfect for family or guests. Upstairs, you’ll find a flexible fourth bedroom or large rec room with its own closet and full bath—ideal as a guest suite, office, or media room. Other highlights include a mudroom with cubbies, spacious 3-car garage (36' wide) and unbeatable access to I-64 and Route 288, making your commute and weekend getaways a breeze. Only 8 more homesites to custom build!
Contact Agent
Beth Lane
Property Details
Property Type
Single Family
Bedrooms
4
Bathrooms
3.2
Size
4559
Floors
2
Year Built
TO BE BUILT
Buyers Agent Compensation -
Property Location
825 Colony Bluff Pl, Richmond, VA 23238, USA






